Lakeside Luxury has a Total Kitchen Transformation: Before and After Design Insider

Lakeside Luxury Before and After

This dreamy lakeside property had an ideal location, but not an ideal kitchen!

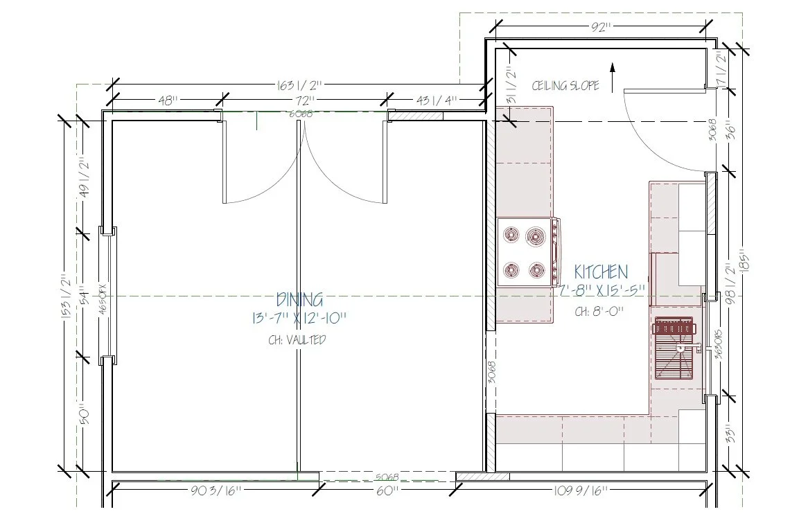
The homeowners love to entertain and had lake views from almost every room of their home except the kitchen, instead the view was in their dining room; and while it was a nice area overall - it went mostly unused; the kitchen was cramped, dated and had an area with a sub-standard ceiling height that felt useless.

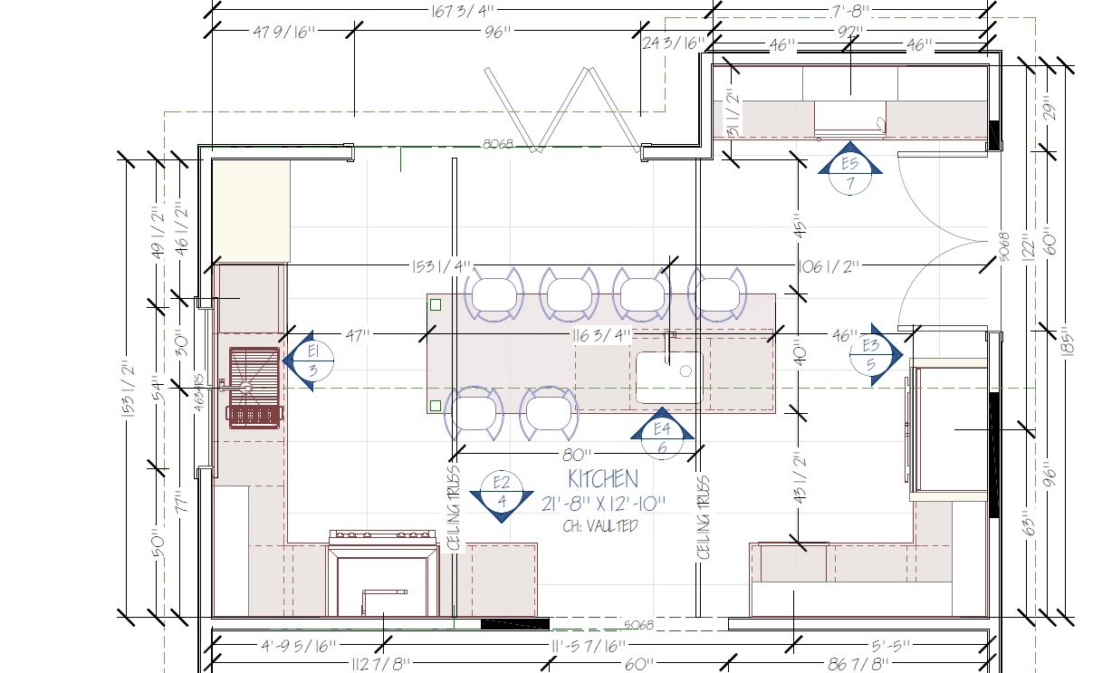
The homeowners wanted to have a large, open kitchen with a center island where they could eat daily meals and entertain while enjoying views of the lake. 

To achieve their goals, I removed interior walls, doubled the size of the kitchen and completely reconfigured the space to give them their dreamy lakeside luxury kitchen!

The dining room had a vaulted ceiling, but the kitchen had a flat 8’-0” ceiling that sloped lower than 8’-0” at the single French door to the backyard and the homeowners weren’t sure how we could create a cohesive kitchen design utilizing both spaces. Luckily, together we were able to come up with the perfect solution.

To create cohesion between the two areas we vaulted the ceiling throughout the entire space and we designed a little beverage bar area under the lower, sloped ceiling height space that had previously been unusable, .

The previously ‘unusable’ sub-standard ceiling area that turned into a cute beverage bar with beautiful storage that matches the new kitchen space. (You can see some design tips for nooks and bars here.)

By taking over the unused dining room, we more than doubled the size of the kitchen!  With more square footage to work with, I was able to design a center island that functions as their daily dining area with seating on both sides. The kitchen sink was relocated to the opposite exterior wall with views of the lake and the vaulted, wood plank ceiling was designed to enhance the connection to nature as well as bring in a cozy vibe against the white cabinetry and concrete vibe of the luxury vinyl tile.

Below you can see three main before and after areas that we documented:

  • The original kitchen sink wall with single door to the backyard, which we transformed with a pair of French doors and mini bar space.

  • The original cramped kitchen with a wall separating the dining room, which we removed and gave the whole space a big lift with the new vaulted ceilings.

  • The original sink wall with a small viewless window, which we repurposed for the panel ready fridge, updated storage, and a nice long work surface with an under-counter microwave.

The lake views were the priority for this kitchen design, but access to the backyard (and private dock!) from multiple locations was also desirable as the homeowners love to entertain and already had a lovely outdoor patio and outdoor kitchen.

I’ve talked in my blog before about how when I work with homeowners on any project, one of the first things we do is talk about what they use everyday. Why? Because we want your home to not only reflect your lifestyle, but enhance it by catering to your needs and routines!

The island with a secondary sink for easy food prep, clean up, and entertaining!

Pro Tip: With the kitchen sink on the opposite side of the kitchen as the refrigerator, I designed the island with a second sink that the homeowners could use while entertaining and during daily food prep when getting food out of the fridge.  Because the island is designed to be multi-purpose it can be used for more than just daily dining!

The new sink view!

Relocating the main kitchen sink to the opposite exterior wall meant the homeowners would have a lake view from the kitchen sink, rather than a backyard view!  With ample storage in base cabinets, I was able to achieve their minimalist design aesthetic with floating wood shelves that coordinate with the vaulted, wood paneled ceiling.

The homeowners had a minimalist design aesthetic and loved the look of open shelves, so dish storage was designed into the pantry cabinet for easy access and super clean organization!  With dishes in drawers, the only storage on the kitchen walls are stained wood floating shelves!

The beautiful Wolf range, custom cabinet hood, and surrounding custom storage solutions built into the lower cabinets.

Smart dish storage in a pantry cabinet eliminates the need for wall cabinets!

If you’re feeling inspired to move ahead with your own before and after design story and you’d like my help along the way, I invite you to contact me today.

 
 
Next
Next

Design Tips to Make the Most of Nooks and Bar Spaces at Home