From Country Yellow to Great Grays: An Interior Redesign
Isn’t it amazing what new paint, cabinetry, and a little redesign can do?!
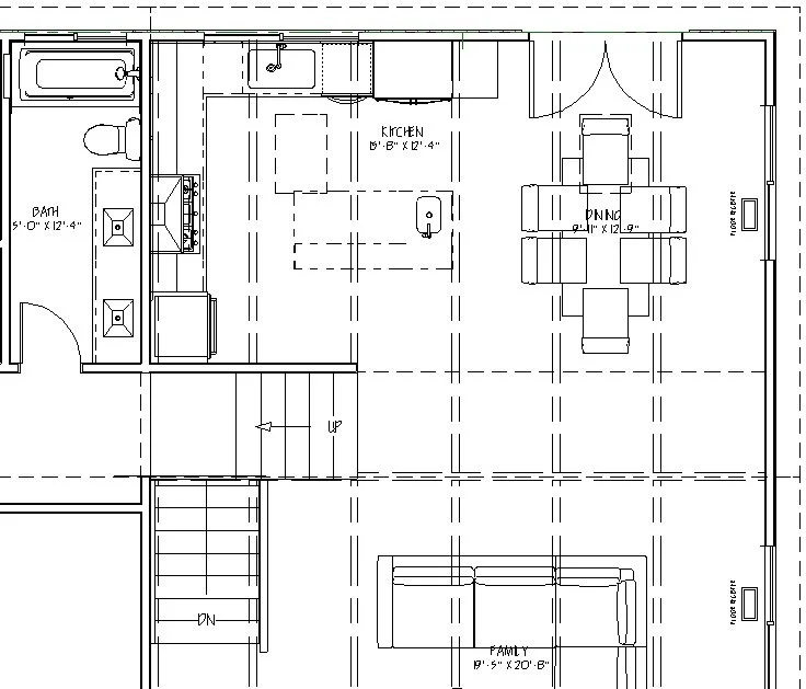
This young family longed for a kitchen that had better storage and a layout that felt more open to their dining space and family room. They had beautiful vaulted ceilings, great natural light, and a great amount of space to work with, so we could work within the existing walls to give them exactly what they wanted!
To create better sight lines, we only removed a small portion of the full-height wall between the kitchen and family room (shown as the ‘hatched’ wall in the before plan), and instead of keeping the same footprint for the kitchen, we replaced the peninsula with an island.
This more open ‘L’ shaped kitchen creates a better workspace for more than one person as well as a casual hangout space while entertaining. We kept the sink and dishwasher in their existing locations, moved the oven and microwave, moved the refrigerator, and added a pantry cabinet.
We also disguised the duct work to vent the hood so there’s no longer an exposed duct painted the same color as the wall (see first photo).
Adding lighting to existing vaulted, open beam, and/or tongue and groove ceilings can be tricky and patching can be next to impossible, so rather than take our chances, we were able to create small, shallow channels in the existing ceiling beams and install new LED lighting into the beams! These are on a dimmer switch so the homeowners can easily control the level of lighting they need at any time of day!
With these great vaulted ceilings, we really wanted to avoid a tall hood shaft running from the top of the cabinets to the ceiling in order to vent the hood over the cooktop, so with some sneaky cabinet design, we worked with the cabinet maker to create a ‘chase’ where the hood duct could run through the tops of the wall cabinets and vent out through the exterior wall!
Check out the “Great Grays: A Gorgeous Kitchen Remodel” Gallery in our Portfolio for more project photos.
Ready to make the most of your kitchen space? Contact me today.
 
                 
                 
                 
                 
                